Pôle régional des Musiques Actuelles, Aulnoye Aymeries
MAÎTRISE D'OUVRAGE : Agglomération Maubeuge Val de Sambre / MISSION : scénographie d’équipement / SITUATION ACTUELLE : concours février 2012 / EQUIPE : Construire (architecte mandataire), Baron&Louguet (architecte cotraitant), Nord Sud paysages (paysagiste), Ingérop (BET), D. Caucheteux (acousticien)
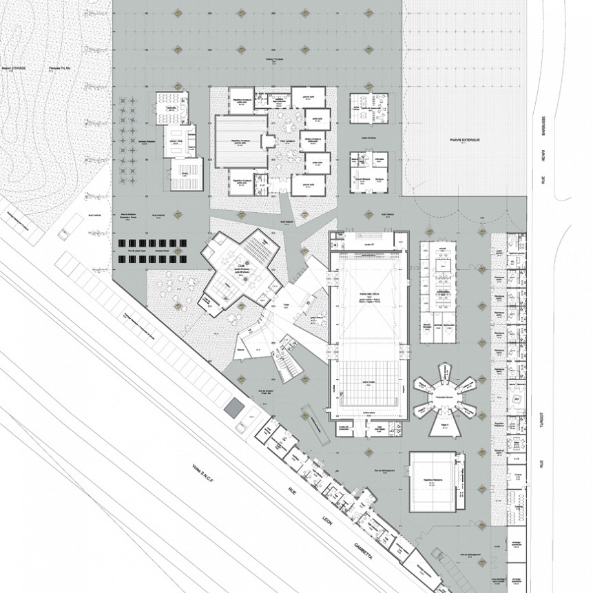
Le Pôle régional des Musiques Actuelles prend place dans une ancienne hall industrielle à Aulnoye Aymeries.
Le projet réalisé, "La Bombe", propose sous son grand parapluie coloré un lieu vivant, ouvert à toutes les pratiques urbaines, à tous les usages, un carnaval, un festival, une « parade » d’architectures.
A tout instant, il s’y passe quelque chose : café, restaurant, espaces de répétitions amateurs, résidences d’artistes, concerts, mais aussi jardin pour enfants, fête foraine, spectacles de plein air, skate park, marchés et foires font vivre le lieu en permanence.
Comme un cirque venu se poser sur la place du village, l’espace de musiques actuelles d’Aulnoye Aymeries éparpille ses différentes fonctions sous les charpentes du grand parapluie existant.
Les constructions se développent de part et d’autre d’une rue couverte orientée est-ouest qui vient se greffer sur le croisement Turgot/Henry Barbusse, amorçant la liaison avec le site central du festival des Nuits Secrètes.
Les espaces non affectés, qui représentent plus du tiers du projet, restent libres et utilisables pour tous les usages d’aujourd’hui ou de demain. Ils peuvent tantôt servir au stationnement (176 places), tantôt au montage d’un chapiteau (sur le parvis) ou être utilisés par les skateurs du lycée voisin. Ils peuvent également servir d’espace couvert pour de grands concerts, abriter un marché le temps d’un weekend, une patinoire foraine en hiver, une piscine foraine en été…Ils restent enfin disponibles pour la venue ultérieure d’un équipement pérenne (gymnase, théâtre, musée, etc.).







